Nottinghill Suites

  • S$3,400
  • S$5/Sq Ft
Featured For Rent
29A Toh Tuck Road Singapore 596195
Featured For Rent
Nottinghill Suites
29A Toh Tuck Road Singapore 596195
  • S$3,400
  • S$5/Sq Ft

Overview

  • Condominium
  • Property Type
  • 1
  • Bedroom
  • 1
  • Bathroom
  • 624
  • Sq Ft

Description

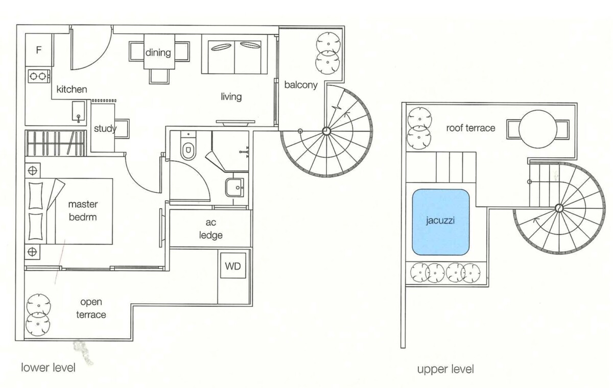
【 Unit Details 】
 
– Address: 29A Toh Tuck Road, Singapore 596195
– Floor Area: 624 sqft | 58 sqm
– Layout: 1 Bedroom, 1 Bathroom
 
【 Key Highlights 】
 
– Rare 1 Bedroom Penthouse with Private Roof Terrace
– Exclusive top floor unit offering enhanced privacy, openness and elevated living
– Unique layout that combines comfortable indoor space with a private outdoor roof terrace
– Roof terrace is ideal for gardening, outdoor dining, entertaining or relaxing under the open sky
– Perfect for singles or couples seeking a stylish home with a lifestyle element
– Suitable for pet owners, with an added outdoor space to enjoy within the comfort of home
– A rare unit type that offers more charm and exclusivity than a typical 1 bedroom apartment in the development
– Layout: Spacious, squarish and highly functional floor plan
– Comfort: Bright, breezy and naturally well ventilated throughout
 
【 Location & Connectivity 】
 
– MRT: 8 minutes’ walk to Beauty World MRT (764m)
– Accessibility: Direct Downtown Line access to Botanic Gardens, Newton, Bugis and Downtown
 
【 Amenities & Lifestyle 】
 
– Shopping & Dining: Close to Beauty World Centre, Beauty World Plaza, Bukit Timah Shopping Centre, Bukit Timah Plaza and KAP Mall, offering a wide variety of cafés, restaurants, retail shops and everyday services.
– Groceries: Convenient access to Giant Supermarket, NTUC FairPrice and Cold Storage within the Beauty World area.
– Recreation: Near Bukit Batok Nature Park, and Bukit Timah Nature Reserve and nearby park connectors for jogging, cycling and outdoor relaxation
– Community: Situated within a mature estate with a strong residential environment, greenery and well established amenities
 
【 Development Details 】
 
– Tenure: Freehold
– Completion / TOP: 2016
– District: 21
– Total Units: 124

Details

Updated on April 25, 2026 at 10:03 am
  • Price: S$3,400
  • Property Size: 624 Sq Ft
  • Bedroom: 1
  • Bathroom: 1
  • Property Type: Condominium
  • Property Status: For Rent

Additional details

  • Completion/ TOP: 2013
  • District: 9
  • Total Units: 152
  • Tenure: Freehold
  • Address 29A Toh Tuck Road Singapore
  • Zip/Postal Code 596195
  • Area D21 – Central West (Clementi, Upper Bukit Timah, Hume Avenue)
  • Country Singapore

Floor Plans

image

Description:

Video

Contact Information

View Listings

Enquire About This Property

Similar Listings

Compare listings

Compare
Sherry Tang
  • Sherry Tang